Eladó Lakás (téglaépítésű) Budapest VII. kerület - Dohány utca

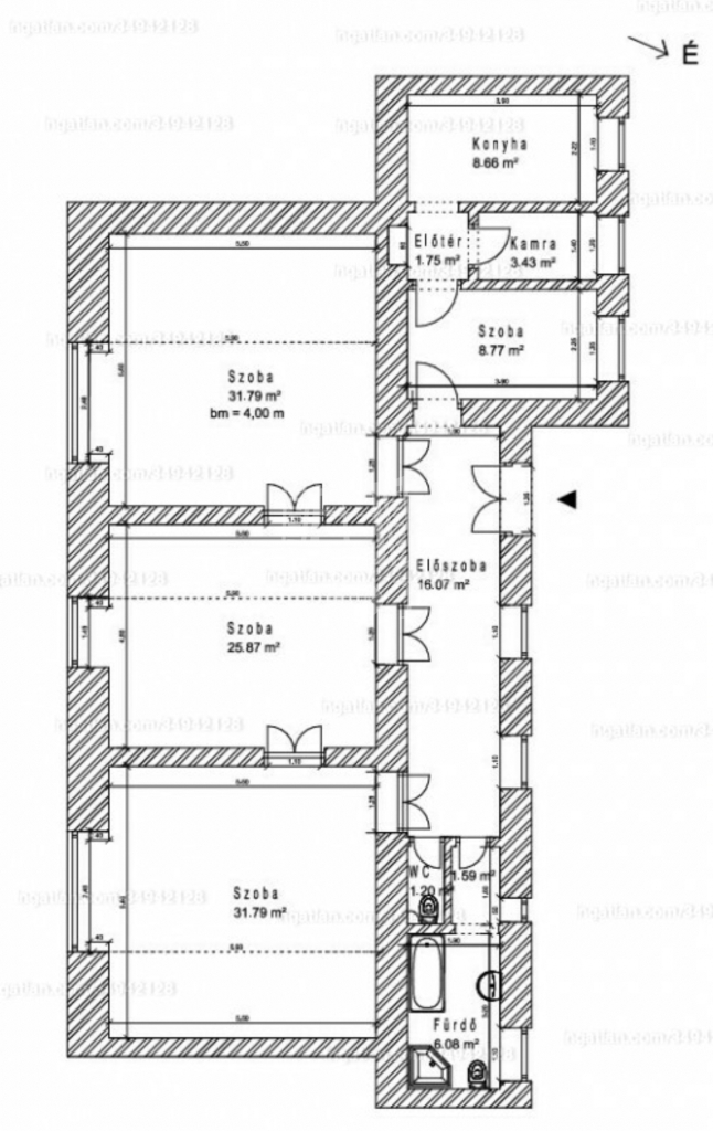
136 m2Alapterület 5 Szoba
170 000 000 Ft Ár
392568Azonosító
További adatok

Utcai Kilátás

Közepes Állapot

Tégla Szerkezet

Gáz (cirkó) Fűtés

Összkomfort Komfort

Utcán, közterületen Parkolás

Emelet 1

Van Lift

Kiváló Tömegközlekedés

Nem Amerikai konyhás

Nincs Kertkapcsolat

1898 Építés éve

Déli Tájolás

Hitelkalkuláció – a részletekért kattintson valamelyik bank logójára!

RITKASÁG A BELVÁROSBAN – EGY IGAZI NAGYPOLGÁRI ÖRÖKLAKÁS, AHOL A TÖRTÉNELEM MÉG ÉL.

136 m², 4 MÉTERES BELMAGASSÁG, EREDETI FA ZSALUGÁTEREK. 170Mft

ILYET MA MÁR ALIG TALÁLNI.

Zsinagóga 2 percre !

A Dohány utca Astoriához közel eső szakaszán, egy 1898-ban épült neobarokk palotában várja új tulajdonosát ez a különleges, igazi nagypolgári öröklakás.

Az épület Meinig Artúr tervei alapján készült – annak az építésznek a munkája, aki a korszak legjelentősebb megrendelőinek tervezett palotákat, és akinek alkotásai ma is Budapest városképének meghatározó részei.

A ház eredeti története – egy darab élő Budapest

A telken egykor Langheinrich Frigyes, egy jómódú és közkedvelt vendéglős otthona állt. Akkoriban a környéket a pezsgő, elegáns polgári élet jellemezte: kávéházak, műhelyek, kereskedők, diákok forgataga töltötte meg az utcákat.

Frigyes halála után lánya,Langheinrich Magdolna – későbbi nevén Emmer Kornélné –úgy döntött, hogy valami maradandót, nagyszabásút álmodik a családi telekre.

Megbízta a korszak egyik legnevesebb építészét, Meinig Artúrt, és felépült az a neobarokk bérpalota,amely ma a Rákóczi út egyik legszebb ékköve.

A palotában az évtizedek során:

• előkelő, nagypolgári családok laktak,

• leánykollégium működött,

• később ortopéd kórház,

• majd a híres Veres Pálné leánynevelő intézet költözött ide.

A ház falai ma is őrzik a régi Budapest hangulatát, méltóságát és energiáját. Belépni ide olyan, mintha egy pillanatra megállna az idő.

A LAKÁS FŐ ÉRTÉKEI – AMIK MEGFOGJÁK AZ EMBERT

• 136 m², monumentális terekkel.

• 4 MÉTERES belmagasság, amely ritka és pótolhatatlan.

• Eredeti, működő fa zsalugáterek minden ablakon – muzeális érték.

• Összesen 5 szoba: 3 utcai, 1 nagy udvari és +1 kisebb udvarra néző szoba.

• A helyiségek körbejárhatók, több irányból is megközelíthetők.

• Könnyedén két lakássá alakítható, ezért kiváló befektetés.

• A konyha ablakánál egykor második bejárat volt, ennek nyomai ma is láthatók – különleges történelmi részlet.

MŰSZAKI RÉSZLETEK – AMIK ÉRTÉKET TEREMTENEK

• Az udvarra néző nyílászárók minőségi, előírás szerinti cseréje megtörtént.

• Két szobában légkondicionáló.

• Gáz-cirkó fűtés, kedvező üzemeltetéssel.

• Szobákban parketta, vizes helyiségekben járólap.

• Az udvari ablakokon biztonsági rácsok.

• Közös költség: 38.000 Ft/hó.

A HÁZ ÉS A KÖRNYEZET

• A belső homlokzat szép, rendezett.

• Az udvar csendes és hangulatos, békebeli atmoszférával.

• Liftes épület, az első emelet könnyen megközelíthető.

• Astoria, metrók, villamosok, buszok – minden néhány lépésre.

A háztömb eredetileg három utcáról volt megközelíthető, ami a századfordulón ritka és reprezentatív építészeti megoldásnak számított. Ma két kapu áll nyitva, de az udvar még mindig őrzi a korabeli elegancia nyugalmát.

KINEK VALÓ EZ A LAKÁS?

Tökéletes:

• orvosi rendelőnek,

• ügyvédi irodának,

• nívós vállalkozás székhelyének,

• magánklinikának,

• vagy a polgári lakások szerelmeseinek,

akiket megérint a régi Budapest atmoszférája.

És persze azoknak a befektetőknek,

akik felismerik, milyen ritka ma már egy ilyen eredeti állapotú nagypolgári lakás a Belvárosban.

Egy dolog biztos: EZT NEM SZABAD ELENGEDNI.

Akárki lép be ide, azonnal érzi majd.

Ez nem egyszerű ingatlan.

Ez történelem, nagyság, méltóság – és páratlan lehetőség.
Ez az a lakás, amelyet, ha valaki megszerez,

évtizedekre ragaszkodni fog hozzá.

Elérhető vagyok a nap bármely szakaszában, akár hétvégén is!
Lukács Péter

Lukács Péter

Hívjon bizalommal

+36-30-694-Mutasd!

További hirdetéseim

Ingatlaniroda
GDN Ingatlanhálózat - Belváros
+36 1 783 2515

Küldjön üzenetet

Visszahívást kérek

Hasonló ingatlanok