Eladó Ikerház Ercsi - Ercsi Duna-part közelében

85 m2Alapterület 4 Szoba
60 000 000 Ft Ár
394310Azonosító
További adatok

860 m2 Telek

Kertre néző Kilátás

Építés alatt Állapot

Tégla Szerkezet

16 m2 Erkély/terasz

Hőszivattyú Fűtés

Összkomfort Komfort

Saját beálló Parkolás

Közepes Tömegközlekedés

Amerikai konyhás

Van Kertkapcsolat

2026 Építés éve

Délnyugati Tájolás

Hitelkalkuláció – a részletekért kattintson valamelyik bank logójára!

A hely, ahol a fény és a levegő házasodik...
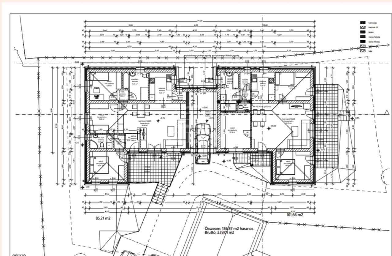
Kompakt, élhető otthon ideális térkihasználással

A nettó 85 m²-es lakótér nappali–étkező központú kialakítással, három külön nyíló szobával és praktikus kiszolgáló helyiségekkel biztosít kényelmes, átlátható életteret. A délnyugati tájolásnak köszönhetően a nappali és a terasz egész nap világos, élhető atmoszférát teremt.
A 16 m²-es terasz közvetlen kapcsolatot ad a kerttel, így a belső tér természetesen bővül egy jól használható kültéri élettérrel.

Műszaki tartalom, ami hosszú távon is érték:
- hőszivattyús rendszerrel működő padlófűtés
- energiahatékony melegvíz-előállítás
- 15 cm homlokzati szigetelés
- korszerű műanyag nyílászárók, 3 rétegű üvegezéssel
- 2,7 m belmagasság – levegős, arányos terek

Várható átadás:2026.
A kivitelezést megbízható, referenciákkal igazolt beruházó végzi, magas műszaki színvonal mellett.

Az ingatlan kivitelezése folyamatban van, így bizonyos elemek még a leendő tulajdonos igényeihez igazíthatók.

A várható átadás időpontja a kivitelezés aktuális készültségi szintjének és az értékesítés ütemének függvénye.


A lakás saját mérőórákkal rendelkezik, a kert használata kizárólagos, így a privát szféra teljes mértékben biztosított.
Ez az ingatlan ideális választás azoknak, akik teljes értékű családi otthont keresnek, kompromisszumok nélkül.
Lukács Péter

Lukács Péter

Hívjon bizalommal

+36-30-694-Mutasd!

További hirdetéseim

Ingatlaniroda
GDN Ingatlanhálózat - Belváros
+36 1 783 2515

Küldjön üzenetet

Visszahívást kérek

Hasonló ingatlanok