Eladó Családi ház Székesfehérvár - Öreghegyen

134 m2Alapterület 5 Szoba
170 000 000 Ft Ár
391738Azonosító
További adatok

551 m2 Telek

Kertre néző Kilátás

Új Állapot

Tégla Szerkezet

20 m2 Erkély/terasz

Hőszivattyú Fűtés

Dupla komfort Komfort

Saját garázs Parkolás

Tömegközlekedés

Amerikai konyhás

Van Kertkapcsolat

2026 Építés éve

Hitelkalkuláció – a részletekért kattintson valamelyik bank logójára!

H-004709. Székesfehérváron, az Öreghegy népszerű és csendes részén, új építésű, 134m2 hasznos alapterületű+ 36m2 garázs kétszintes családi házak eladók!
A ház csendes, családi házas környezetben található, egy nyugodt zsákutcában. Kiváló infrastruktúra jellemzi: iskola, óvoda, bevásárlási lehetőségek és az autópálya könnyen elérhetők, miközben zöld, nyugodt környezetet biztosít.
A területen három különálló, igényesen megtervezett önálló ház épül, saját, kerítéssel elválasztott önálló telekterületen. Az ingatlanok modern, egységes megjelenésűek és megbízható kivitelezőtől, kulcsrakész állapotban kerülnek átadásra.
Átadási határidő: 2026. október 1.
Főbb adatok:
• Lakóterület: 133,62 m²
o Földszint: előtér, amerikai konyhás nappali étkezővel, hálószoba, gardrób, fürdőszoba, háztartási helyiség, garázs, terasz.
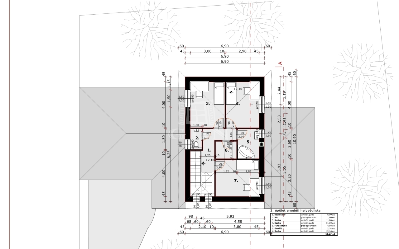
o Emelet: közlekedő, 3 különálló hálószoba, gardrób, fürdőszoba, külön WC.
• Garázs: 36 m²
• Fedett + nyitott terasz: 24,32 m²
• Összes hasznos terület: 200,36 m²
• Saját telekrész: 551 m²
Minőség, ami hosszú távon is megállja a helyét:
• Masszív szerkezet: vasalt beton sávalap, 30 cm vastag Bakonytherm vázkerámia falak, monolit vasbeton merevítéssel.
• Energiatakarékos megoldások: 15 cm-es homlokzati hőszigetelés, 30 cm-es fújt födémszigetelés.
• Tető: Terrán Zenit Elegant Max cserép, porfestett alumínium bádogozás.
• Prémium nyílászárók: Veka Soft Line 82 mm, 3 rétegű, 7 légkamrás üvegezés, motoros redőny előkészítéssel (külső dió szín, belső fehér).
• Beltéri ajtók: választhatóak 120.000 Ft/db-ig.
Korszerű gépészet:
• Fűtés és melegvíz: levegő–víz hőszivattyú, padlófűtés mindkét szinten, szintenkénti szabályozással.
• Melegvíz tároló: 200 literes indirekt tároló.
• Elektromos hálózat: 3×25 A, Schneider Sedna szerelvények.
• Előkészítések:
o 5 db klíma
o motoros redőnyök
o riasztó és kamera rendszer
o kaputelefon
o elektromos autó töltő + napelem
• Belső burkolatok: parketta (6.000 Ft/m²-ig az árban), hidegburkolat fürdőkben, WC-ben, garázsban és teraszon (10.000 Ft/m²-ig az árban).
• Fürdők: teljes magasságig csempézve, vízszigeteléssel.
Kültéri kialakítás, amit az ár tartalmaz:
• Utcafronti kerítés
• Motoros kapu, térkövezett kocsibejáró
• Faltő járdák, durva tereprendezés
• Parkosítás az igények szerint alakítható.
Finanszírozás:
• személyre szabott ingyenes hitelügyintézés
Eladási irányára: 170 000 000.- Ft
Ez az ingatlan ideális választás családosoknak, több generáció együttélésére, vagy azok számára, akik egy nyugodt, természetközeli otthont keresnek Székesfehérváron!
Ne maradjon le róla! További információért vagy megtekintésért keressen bizalommal.
Ha felkeltette érdeklődését, és további részleteket szeretne megtudni, hívja irodánkat bizalommal, éljen, személyre szabott ingyenes hitelügyintézés szolgáltatásunkkal. Segítünk továbbá adásvételhez szükséges ügyvédi közreműködésben, energetikai tanúsítvány, valamint értékbecslés elkészítésében.
Lukács Péter

Lukács Péter

Hívjon bizalommal

+36-30-694-Mutasd!

További hirdetéseim

Ingatlaniroda
GDN Ingatlanhálózat - Belváros
+36 1 783 2515

Küldjön üzenetet

Visszahívást kérek

Hasonló ingatlanok