Eladó Családi ház Nagypáli - Új, tégla építés, nappali + 3 szoba

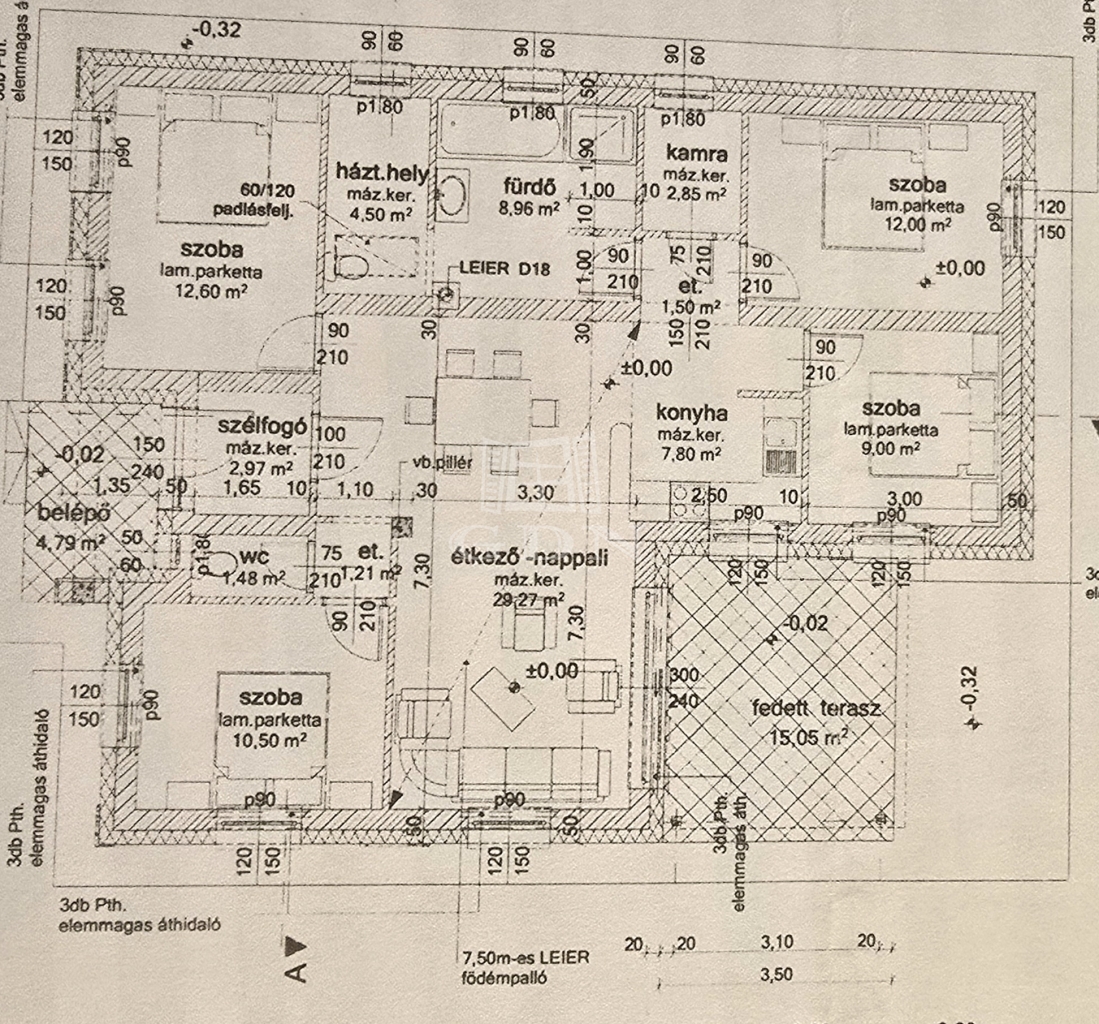
123 m2Alapterület 4 Szoba
94 900 000 Ft Ár
389358Azonosító
További adatok

1079 m2 Telek

Kertre néző Kilátás

Új Állapot

Tégla Szerkezet

15 m2 Erkély/terasz

Gáz (cirkó) Fűtés

Összkomfort Komfort

Saját beálló Parkolás

Tömegközlekedés

Amerikai konyhás

Van Kertkapcsolat

2025 Építés éve

Hitelkalkuláció – a részletekért kattintson valamelyik bank logójára!

‼️Árcsökkenés ‼️

Új ár: 94 900 000 Ft

✨ ÚJ ÉPÍTÉSŰ MODERN OTTHON • PANORÁMA • ELEGANCIA • TERMÉSZETKÖZELI NYUGALOM ✨

Különleges lehetőség Nagypáliban – egy energiatudatos, jövőbe mutató településen
123 m²-es letisztult, világos családi ház • hatalmas saroktelken • 3 hálószoba + amerikai nappali

Ha egy olyan otthont keres, ahol a minőség, a tér, a fény és a természet találkozik, akkor ez a ház tökéletes választás.
Modern, elegáns, mégis otthonos – egyetlen szinten, logikus, élhető alaprajzzal, közvetlen kertkapcsolattal és zavartalan, zöld panorámával.

A HÁZ FŐBB ÉRTÉKEI

✅ Új építésű, modern családi ház – 123 m², földszintes, ideális elrendezés
✅ 1079 m²-es saroktelek – privát tér, rendezett környezet, panorámás kilátás
✅ Napfényben úszó nappali–konyha–étkező → közvetlen teraszkapcsolattal
✅ 3 kényelmes, különnyíló hálószoba
✅ Energiatakarékos fűtés: gázcirkó kazán padlófűtéssel + klíma
✅ Világos, nagy üvegfelületek, modern műszaki tartalom
✅ Halk, zöldövezeti környezet, de mégis könnyen megközelíthető
✅ Új építésű utcafront, igényes környezet, kulturált szomszédság

ELHELYEZKEDÉS – NAGYPÁLI
Az ország egyik leginnovatívabb, legzöldebb települése, amely példaként szerepel fenntartható és energiabarát működésével.
5 perc Zalaegerszegtől, mégis teljes vidéki nyugalom – kompromisszumok nélkül.

✔️ Fiatalodó lakosság, igényes, új házak
✔️ Napelemek, hibrid erőmű, megújuló energiára épülő településfejlesztés
✔️ 74-es főút közelében – tökéletes elérhetőség
✔️ Kiváló közösség, biztonságos, nyugodt lakókörnyezet

KINEK AJÁNLJUK?
• Családoknak, akik értékelik a teret és a minőséget
• Városi dolgozóknak, akik élhető, zajmentes otthonra vágynak
• Befektetőknek, akik értik, milyen ritka az új építésű + nagy telek + jó lokáció kombinációja
• Természetkedvelőknek, akik mégis 5 percre akarnak lenni a várostól

Irányár: 94 900 000.- Ft

Érdeklődés, megtekintés
Ha ez az otthon megszólította – hívjon, mielőtt más teszi meg!
Irodánk díjmentes hitel- és ügyintézési hátteret biztosít, teljes körű támogatással: hitel, energetika, ügyvéd, értékbecslés → minden egy helyen.
Lukács Péter

Lukács Péter

Hívjon bizalommal

+36-30-694-Mutasd!

További hirdetéseim

Ingatlaniroda
GDN Ingatlanhálózat - Belváros
+36 1 783 2515

Küldjön üzenetet

Visszahívást kérek

Hasonló ingatlanok