Eladó Lakás (téglaépítésű) Pásztó - Csillag tér

40 m2Alapterület 2 Szoba
37 000 000 Ft Ár
392534Azonosító
További adatok

Panoráma Kilátás

Újszerű Állapot

Tégla Szerkezet

4 m2 Erkély/terasz

Hőszivattyú Fűtés

Összkomfort Komfort

Utcán, közterületen Parkolás

Emelet Földszint

Nincs Lift

Kiváló Tömegközlekedés

Amerikai konyhás

Van Kertkapcsolat

2025 Építés éve

Hitelkalkuláció – a részletekért kattintson valamelyik bank logójára!

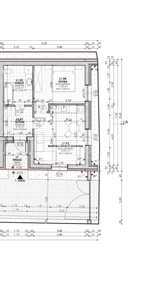
Eladásra kínálunk Pásztón, a Csillag téren egy 4 lakásos társasházban található lakást.

A földszinti, 40 m²-es otthon panorámás kilátást nyújt, világos, napfényes szobákkal.
Várható birtokbaadás: 12 hónap.

Két kényelmes, jól alakítható szoba mellett egy 4 m²-es terasz is helyet kapott, amely tökéletes hely a reggeli kávézáshoz.

Ami még Önre vár:
• Pásztó egyik legszebb utcája
• természetközeli, kertvárosias környezet
• kiváló infrastruktúra
• világos, napfényes, tágas helyiségek
• élhető, praktikusan kialakított terek
• meghitt családi pillanatok a nappaliban
• közös sütés-főzés élménye a konyhában
• baráti összejövetelek a kertben, illetve a Mátra közelsége

A modern hőszivattyús fűtés rendszerének köszönhetően a rezsiköltség rendkívül kedvező.

A település Hatvantól 30 km-re, Salgótarjántól 22 km-re, Budapesttől 75 km-re található.

Pásztó infrastruktúrája kiváló: bevásárlási lehetőségek (Penny, Spar), pékség, üzletek, éttermek, posta, piac, gyógyszertár, cukrászda, valamint óvoda, iskolák, háziorvos és fogorvos egyaránt elérhető.

Ez a kis gyöngyszem tökéletes választás lehet fiataloknak vagy idősebbeknek egyaránt, akik szeretik a nyugalom és a kényelem ötvözését.

További információkért keressen bizalommal!
Lukács Péter

Lukács Péter

Hívjon bizalommal

+36-30-694-Mutasd!

További hirdetéseim

Ingatlaniroda
GDN Ingatlanhálózat - Belváros
+36 1 783 2515

Küldjön üzenetet

Visszahívást kérek

Hasonló ingatlanok