Eladó Családi ház Péteri - Petőfi Sándor utca

160 m2Alapterület 3 Szoba
87 500 000 Ft Ár
389653Azonosító
További adatok

818 m2 Telek

Udvari Kilátás

Közepes Állapot

Tégla Szerkezet

12 m2 Erkély/terasz

Vegyes tüzelésű kazán Fűtés

Összkomfort Komfort

Saját garázs Parkolás

Tömegközlekedés

Nem Amerikai konyhás

Van Kertkapcsolat

1988 Építés éve

Délnyugati Tájolás

Hitelkalkuláció – a részletekért kattintson valamelyik bank logójára!

Kétgenerációs lehetőségekkel bíró, eltolt szintes családi ház Péteri kertvárosi övezetében – közel Pesthez, mégis csendben!

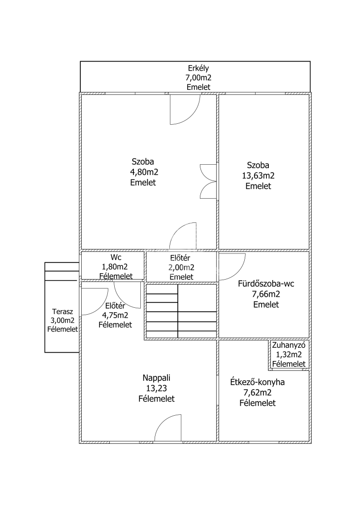
Eladóvá vált egy 160 m²-es, eltolt szintekkel épült közepes állapotú családi ház Péteri egyik legkedveltebb, kiemelt belterületi utcájában, a hangulatos Petőfi Sándor utcában. A házhoz egy tágas, 818 m²-es kert tartozik, sok-sok további alakítási és fejlesztési lehetőséggel – tökéletes azoknak, akik szeretnek saját ízlésre formálni egy ingatlant.

A ház jelenlegi kialakítása – 3 szoba, erkély (9 m²), terasz (3 m²) – ideális alap egy kétgenerációs otthon megvalósításához is. A tetőtér újabb két eltolt szinten beépíthető, ideális alap egy kétgenerációs álomotthon megvalósításához is! A fűtésről vegyes tüzelésű kazán gondoskodik, az udvar pedig igazi kertvárosi nyugalmat áraszt.

Közlekedés szempontjából is szuper választás: Péteri az agglomerációban található, közel Budapesthez, remek elérhetőséggel. A vasút és a busz is gyors és kényelmes kapcsolatot biztosít a főváros felé – így azoknak is ideális, akik naponta ingáznak.

A házhoz tartozik továbbá saját garázs, a környék pedig kifejezetten barátságos, csendes és biztonságos.

Fiatal pároknak, nagycsaládosoknak vagy kétgenerációs otthont keresőknek egyaránt remek lehetőség!
Lukács Péter

Lukács Péter

Hívjon bizalommal

+36-30-694-Mutasd!

További hirdetéseim

Ingatlaniroda
GDN Ingatlanhálózat - Belváros
+36 1 783 2515

Küldjön üzenetet

Visszahívást kérek

Hasonló ingatlanok