Eladó Családi ház Piliscsaba - Piliscsaba

110 m2Alapterület 3 Szoba
48 500 000 Ft Ár
387486Azonosító
További adatok

336 m2 Telek

Utcai Kilátás

Felújítandó Állapot

Tégla Szerkezet

Gáz (konvektor) Fűtés

Komfort Komfort

Saját beálló Parkolás

Kiváló Tömegközlekedés

Nem Amerikai konyhás

Van Kertkapcsolat

1955 Építés éve

Hitelkalkuláció – a részletekért kattintson valamelyik bank logójára!

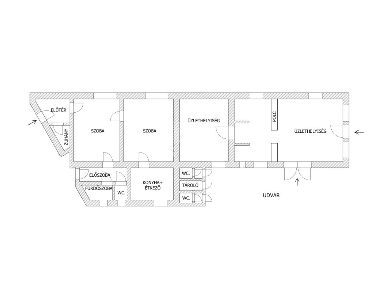
Lakás + üzlethelyiség Piliscsaba városközpont közelében.

336 nm-es telken felújítás alatt álló br. 120 nm-es lakás és üzlethelyiség.

A lakás ~ 55 nm-es, helyiségei: 2 szoba, konyha, 2 fürdőszoba + egy külön wc, közlekedő. A lakás két bejáratos.

Az üzlethelyiség korábban vendéglátóhelyként üzemelt, egy konyhából és vendégtérből + két mosdó található benne. A két helyiség akár teljesen összenyitható, ideális lehet lehet nagy teret igénylő tevékenységekre, mint pl. raktározás, sport, bemutató stb.

Az udvaron grillező és épített kemence található.

Mindkét ingatlanrész saját fő illetve almérővel rendelkezik.

Övezeti besorolása VT-1 / településközpont vegyes építési övezet, vagyis lakó, -kereskedelmi, -szolgáltató, szórakoztató rendeltetési egység létesíthető rajta.

A telekre teherautóval is be lehet állni alkalmas. Telephely és raktározás céljára kifejezetten alkalmas.

Az eladási ár a felújítás függvényében változhat.


Amennyiben a vásárláshoz hitelt is igénybe szeretne venni, akkor
BANKFÜGGETLEN hitelcentrumunk minden elérhető bank és hitelintézet ajánlatát versenyezteti az Ön kedvéért, ráadásul díjmentesen.
Lukács Péter

Lukács Péter

Hívjon bizalommal

+36-30-694-Mutasd!

További hirdetéseim

Ingatlaniroda
GDN Ingatlanhálózat - Belváros
+36 1 783 2515

Küldjön üzenetet

Visszahívást kérek

Hasonló ingatlanok