Eladó Lakás (téglaépítésű) Salgótarján - Acélgyári út

60 m2Alapterület 1 Szoba
11 500 000 Ft Ár
386873Azonosító
További adatok

Udvari Kilátás

Építés alatt Állapot

Tégla Szerkezet

Elektromos Fűtés

Összkomfort Komfort

Utcán, közterületen Parkolás

Emelet Földszint

Nincs Lift

Tömegközlekedés

Nem Amerikai konyhás

Nincs Kertkapcsolat

1960 Építés éve

Közös költség 15 000 Ft

Délnyugati Tájolás

Hitelkalkuláció – a részletekért kattintson valamelyik bank logójára!

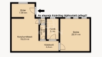
Megvételre kínálok, Salgótarján központi részén, 12 lakásos, tégla építésű társasházban, egy 62 nm-es, 1 szobás, jelenleg felújítás alatt álló, földszinti lakást!

Az ingatlan Délnyugati fekvésének köszönhetően egész nap világos, napfényes.
Rezsiköltsége alacsonyan tartható a kiépített elektromos padlófűtésnek köszönhetően.
A lakás a képeken látható állapotban kerül átadásra, a befejezéséhez szükséges anyagok 90%-a rendelkezésre áll, valamint tartozik hozzá egy 13 nm-es pince helyiség is.

A kis létszámú társasház rendezett, kulturált lakóközösség jellemzi.

Közlekedése, infrastruktúrája kiváló!
Buszmegálló 5 perc sétával elérhető, általános iskola, középiskola, orvosi rendelő, boltok 3 perc sétára találhatóak.

A TEHERMENTES ingatlan előre egyeztetett időpontban elérhető!

Vegyen fel hitelt a legjobb feltételekkel!
Igényelje INGYENES, személyre szabott hitel tanácsadásunkat!
BANKFÜGGETLEN hitelcentrumunk a legnagyobb bankokat és hitelintézetet versenyezteti, hogy a pénzügyi piacon elérhető legolcsóbb és az Ön számára legmegfelelőbb konstrukciót ajánlhassuk.
Segítünk BABAVÁRÓ és kedvezményes hitel felvételében.
Munkatársaink sokéves szakmai tapasztalattal, rugalmas időpont egyeztetéssel állnak az Ön rendelkezésére.

Amennyiben a hirdetés felkeltette az érdeklődését, várom a hívását, akár hétvégén is.
S.S.
Lukács Péter

Lukács Péter

Hívjon bizalommal

+36-30-694-Mutasd!

További hirdetéseim

Ingatlaniroda
GDN Ingatlanhálózat - Belváros
+36 1 783 2515

Küldjön üzenetet

Visszahívást kérek

Hasonló ingatlanok