Eladó Családi ház Szada - Ősz utca

40 m2Alapterület 2 Szoba
39 999 000 Ft Ár
387042Azonosító
További adatok

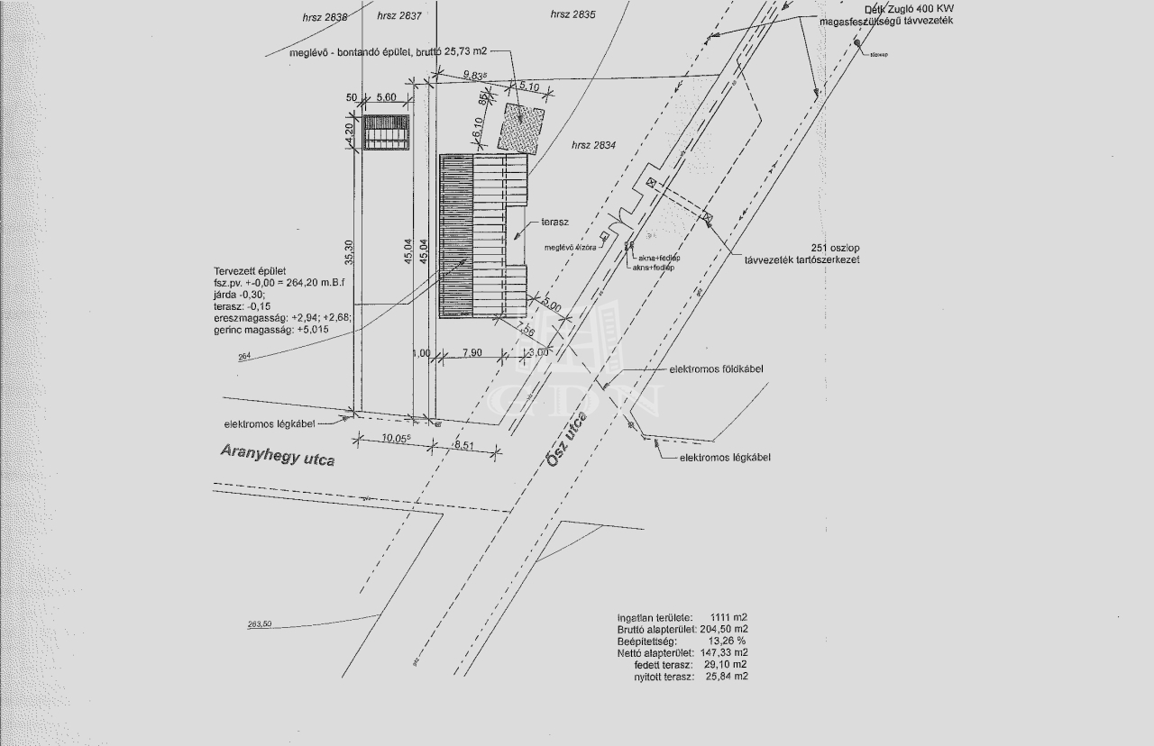
1111 m2 Telek

Kertre néző Kilátás

Közepes Állapot

Könnyűszerkezet Szerkezet

Elektromos Fűtés

Összkomfort Komfort

Saját beálló Parkolás

Közepes Tömegközlekedés

Amerikai konyhás

Van Kertkapcsolat

1995 Építés éve

Délnyugati Tájolás

Hitelkalkuláció – a részletekért kattintson valamelyik bank logójára!

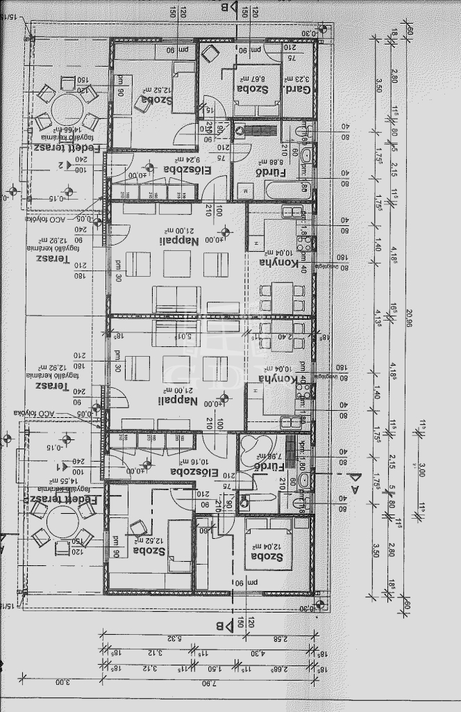
Megvételre kínálok Gödöllő kertvárosában, Szadán, 1111 nm-es telken, egy 40 nm-es könnyűszerkezetes házat.
Az ingatlan 2 külön nyíló szobával, fürdőszobával, wc-vel, nappalival és konyhával rendelkezik.

Közművek tekintetében víz, villany van a házban, 1 X32 Amper, a többi a telek előtt.

Elhelyezkedés: Szada központjától csendes, kertvárosi környezetben, aszfaltozott utcában található. A település Budapesttől mindössze 30 km-re helyezkedik el, így ideális választás lehet azoknak, akik a főváros közelségét keresik, mégis nyugodt, zöldövezeti környezetben szeretnének élni.

Infrastruktúra: A környéken jól kiépített közlekedési lehetőségek állnak rendelkezésre. A legközelebbi buszmegálló pár perces sétával elérhető, Gödöllő és az M3-as autópálya is könnyen megközelíthető. A településen óvoda, iskola, gyógyszertár és bevásárlási lehetőségek is megtalálhatók.

2006-ban készült építési engedélyezési terv, ami közel 150 nm-es ingatlan felépítését engedi.

Amennyiben hirdetésem felkeltette érdeklődését, várom hívását a hét bármely napján! tp
Lukács Péter

Lukács Péter

Hívjon bizalommal

+36-30-694-Mutasd!

További hirdetéseim

Ingatlaniroda
GDN Ingatlanhálózat - Belváros
+36 1 783 2515

Küldjön üzenetet

Visszahívást kérek

Hasonló ingatlanok