Kiadó Iroda Szeged - Kígyó utca

252 m2Alapterület 6 Szoba
2 445 €(~ 897 193 Ft)
391523Azonosító
További adatok

Utcai Kilátás

Felújított Állapot

Tégla Szerkezet

Hőszivattyú Fűtés

Utcán, közterületen Parkolás

Emelet 1

Van Lift

Kiváló Tömegközlekedés

1970 Építés éve

Északkeleti Tájolás

KIADÓ TELJES IRODASZINT SZEGED BELVÁROSÁBAN – A KÍGYÓ UTCÁBAN

Modern, reprezentatív iroda a város szívében.

Szeged belvárosának egyik legfrekventáltabb utcájában, a Kígyó utcában kínálunk kiadásra egy teljes irodaszintet egy liftes, teljeskörűen felújított irodaházban. Az ingatlan ideális választás olyan cégek számára, akik számára fontos a presztízs, a kiváló megközelíthetőség és a modern munkakörnyezet.

Az iroda az első emeleten helyezkedik el, az egész szint egyben bérelhető, így teljesen szeparált, önálló működést biztosít.

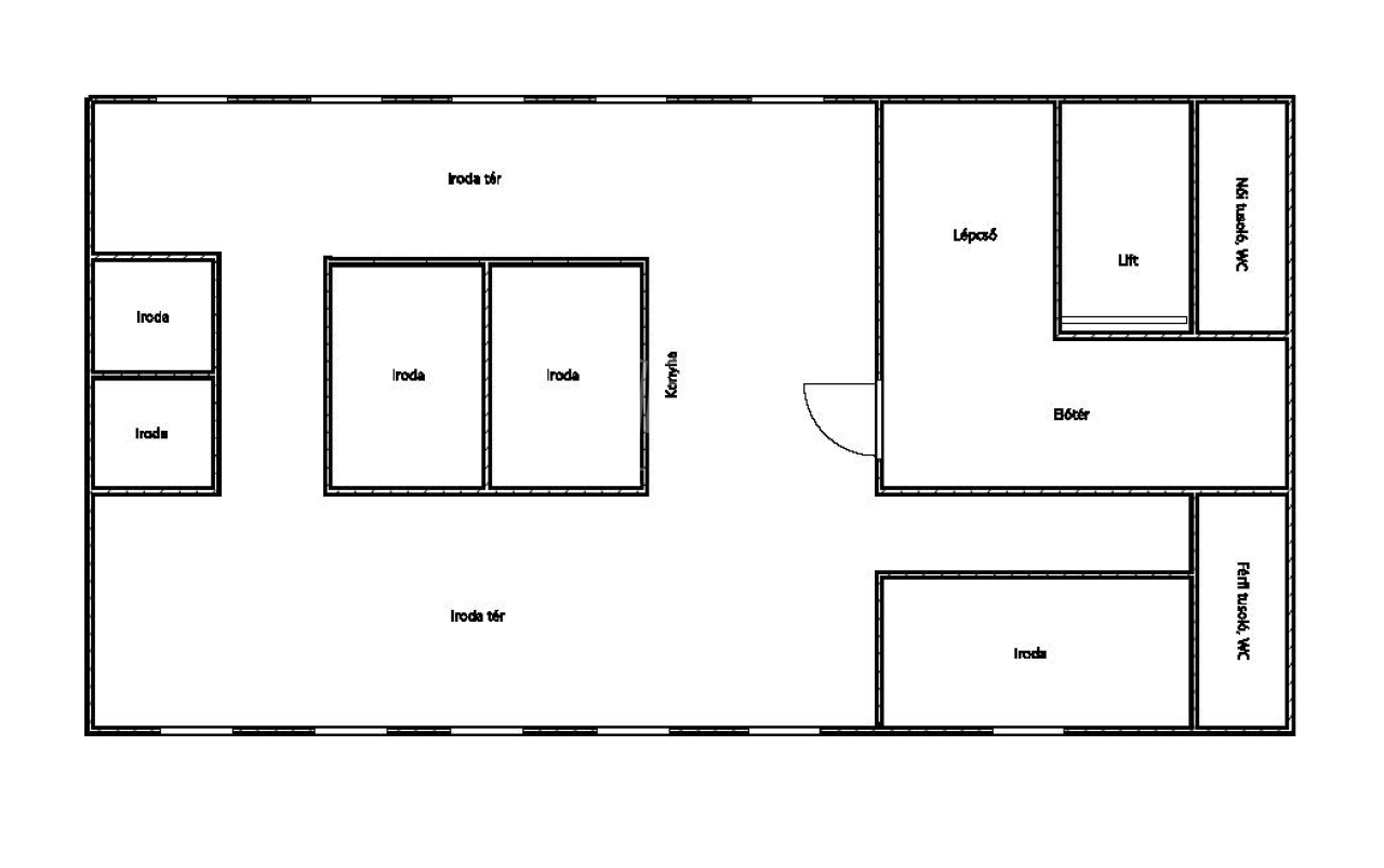
IRODA KIALAKÍTÁSA ÉS MÉRETEI

Teljes alapterület: 252 m²

Kialakítás: modern, egy légterű iroda

A központi térben:

- több, különböző méretű üvegfalú zárt iroda / tárgyaló

- egy nagyobb méretű vezetői iroda

Előtér

Gépesített konyha

Férfi és női WC + tusoló

Bútorozatlan – saját arculatra szabható

Az üvegfalas megoldások világos, inspiráló munkakörnyezetet teremtenek, miközben a zárt irodák megfelelő diszkréciót biztosítanak vezetői vagy tárgyaló funkciókra.

MŰSZAKI TARTALOM

- Fan-coil rendszerű hűtés–fűtés, egyedileg szabályozható

- Teljesen felújított épület

- Lift

- Utcáról nyíló, reprezentatív bejárat

- Korszerű gépészet, alacsony üzemeltetési kockázat

LOKÁCIÓ – BELVÁROS, KÍGYÓ UTCA

A Kígyó utca Szeged egyik legismertebb belvárosi utcája:
- kiváló tömegközlekedés
- éttermek, kávézók, bankok, szolgáltatások közvetlen közelben
- könnyű ügyfélfogadás, presztízsértékű cím
- ideális ügyvédi iroda, IT cég, tanácsadó vállalkozás, szolgáltató központ vagy regionális iroda számára

BÉRLETI FELTÉTELEK

Bérleti díj: 9,7 EUR / m² / hó

Üzemeltetési költség: 3 EUR / m² / hó

Rezsi: fogyasztás alapján

KINEK IDEÁLIS?

Olyan cégeknek, akik belvárosi jelenlétet keresnek

Ügyfélforgalmat bonyolító vállalkozásoknak

Regionális központnak vagy növekvő csapat számára

Akik egy modern, egyben bérelhető, reprezentatív irodát szeretnének Szeged szívében
Lukács Péter

Lukács Péter

Hívjon bizalommal

+36-30-694-Mutasd!

További hirdetéseim

Ingatlaniroda
GDN Ingatlanhálózat - Belváros
+36 1 783 2515

Küldjön üzenetet

Visszahívást kérek

Hasonló ingatlanok