Eladó Lakás (téglaépítésű) Székesfehérvár - Munkácsy Mihály utca

59 m2Alapterület 2 Szoba
49 900 000 Ft Ár
390082Azonosító
További adatok

Utcai Kilátás

Felújítandó Állapot

Tégla Szerkezet

4 m2 Erkély/terasz

Gáz (konvektor) Fűtés

Összkomfort Komfort

Utcán, közterületen Parkolás

Emelet 4

Legfelső emelet

Nincs Lift

Kiváló Tömegközlekedés

Nem Amerikai konyhás

Nincs Kertkapcsolat

1980 Építés éve

Délnyugati Tájolás

Hitelkalkuláció – a részletekért kattintson valamelyik bank logójára!

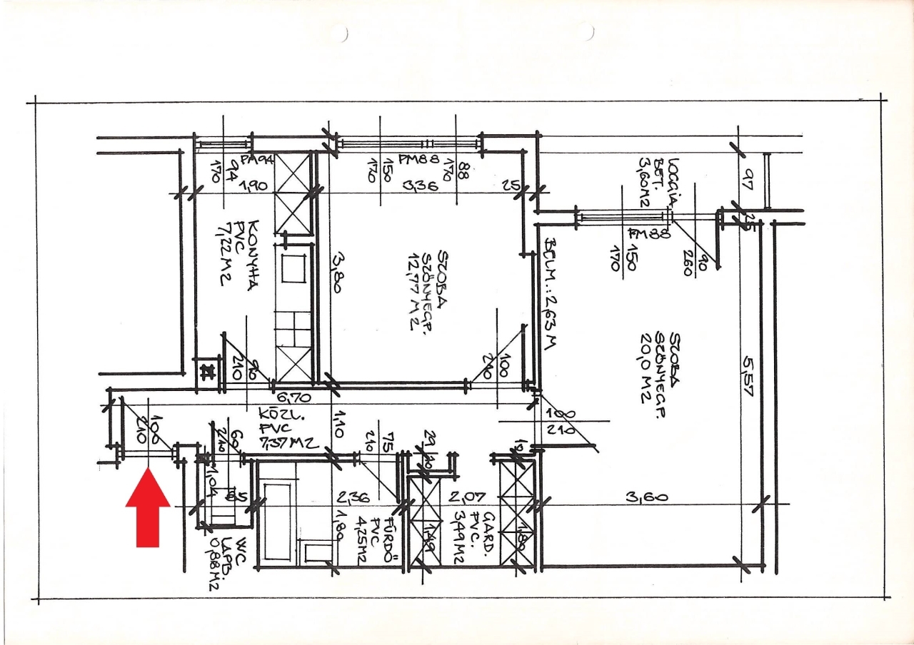
L-004671. Munkácsy Mihály utcában, a belváros szélén frekventált, csendes zöldövezetben, közkedvelt helyen, 4 emeletes épületben 4. emeleti 59 nm-es, erkélyes, tégla – gázkonvektor fűtéses, felújítandó lakás eladó.

A lakás 2 szobás, a fürdő és a wc külön helységben található. A lépcsőház kívülről szigetelt, ablakai újak műanyag hőszigeteltek. A pinceszinten közös tárolók találhatók szintenként, ahol minden lakás használhatja a rá eső területet.

A falak tapétásak és festettek, szobák és a közlekedő burkolata szőnyegpadló, a fürdő, wc, konyha járólappal burkolt. Parkolás az épület körül fizetős övezetben megoldható.

Az közelben zöldövezeti park, iskola, óvoda, gyógyszertár, több bolt és hipermarket található. A lakás a szerződéskötést követően birtokba vehető, akár kiadható.

Az ingatlan elhelyezkedése, remek elosztása, valamint, a környék infrastruktúrája miatt befektetésnek is kiváló.

Jelenleg, megbízható bérlő lakja a lakást több éve, aki szívesen szerződne az új tulajdonossal amennyiben befektetési célú a vásárlás.

Energetikai besorolása: "D"

Eladási irányár: 49,9 M Ft

Ha felkeltette érdeklődését, hívja irodánkat bizalommal, éljen ingyenes, személyre szabott hitelügyintézés szolgáltatásunkkal. Segítünk továbbá adásvételhez szükséges ügyvédi közreműködésben, energetikai tanúsítvány, valamint értékbecslés elkészítésében.

For English details please send us a message or an e-mail, thank you
Lukács Péter

Lukács Péter

Hívjon bizalommal

+36-30-694-Mutasd!

További hirdetéseim

Ingatlaniroda
GDN Ingatlanhálózat - Belváros
+36 1 783 2515

Küldjön üzenetet

Visszahívást kérek

Hasonló ingatlanok