Eladó Ipari terület Újfehértó - Bajcsy-Zsilinszky utca

113 m2Alapterület 3 Szoba
33 000 000 Ft Ár
393401Azonosító
További adatok

1312 m2 Telek

Udvari Kilátás

Közepes Állapot

Tégla Szerkezet

Egyéb Fűtés

Saját beálló Parkolás

Közepes Tömegközlekedés

Nem Amerikai konyhás

Van Kertkapcsolat

1998 Építés éve

Újfehértó Bajcsy-Zsilinszky utcán eladó egy jelenleg ipari üzemként használt épület, mely üzlethelységként vagy raktár épületként is hasznosítható.

Ára: 33.000.000 Ft

Nézze meg videónkat is: https://youtu.be/j-Ffbpp0PtY

Az ingatlan alap méretei:
- a telek mérete: 1312nm,
- az ipari üzem alapja 150nm.

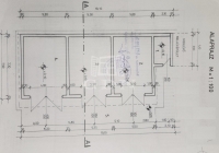
Az ipari üzem hasznos alapterülete 113nm melyben található:
- baloldali csarnok: 7,3mx5,2m=38,0nm,
- középső csarnok: 7,3mx5,3m=38,7nm,
- jobboldali csarnok: 7,3mx5,0m=36,5nm.

Az ipari üzemcsarnok 1998-ban épült, beton alapzattal, 30-as tégla falazattal, mely jelenleg is használatban van. Amennyiben befektető vásárolja meg, úgy a jelenlegi bérlő tovább bérelné az ingatlant.

Az épületben 3 fázisú ipari áram, víz, gáz, csatorna, rendelkezésre áll. Az épület kifejezetten ipari üzemnek készült, nagy bejárati ajtókkal van ellátva, hogy targoncával is be lehessen menni. Az ingatlan állapota jó, szükség szerint könnyen átalakítható. Az épületben iroda, öltöző, zuhanyzó és WC is található.

Az udvarra murvával borított autóbeálló út vezet. Ezen kívül a telken még található egy részben elkészült lakóház, melynek hasznos alapterülete 146nm. A lakóházra már lejárt az építési engedély, de bármikor újra indítható.


Fontos!
Az ingatlan Újfehértó belvárosától 5 percre helyezkedik el. A közelben találhatók iskolák, óvodák, orvosi rendelők, fogászat, gyógyszertár, bank, templom, piac, az Önkormányzati hivatal, a Városi uszoda és számtalan üzlethelyiség is. Továbbá alig 10 percre van a SPAR, a PENNY és a LIDL bevásárló központok is.

Újfehértó város jelenleg az ötödik legnépesebb város Szabolcs-Szatmár-Bereg vármegyében. Nyíregyházától körülbelül 16 kilométerrel délre, Debrecentől 35 kilométerrel északra, a Nyírség Hajdúság felé eső peremén fekszik. Két legfontosabb közúti megközelítési útvonala a 4-es főút, illetve az M3-as autópálya, ezeknek köszönhetően az ország távolabbi részei felől is könnyen megközelíthető.

A hazai vasútvonalak közül a várost a Budapest–Debrecen–Nyíregyháza–Záhony-vasútvonal érinti, melynek egy megállási pontja van itt. A környező kisebb települések közül Hajdúdoroggal, Hajdúböszörménnyel, Nagykállóval, Nyíregyháza Butyka nevű különálló városrészével, Érpatakkal és Kálmánházával mellékutak kötik össze.

Ha felkeltettem érdeklődését, hívja irodánkat bizalommal!
Ha hitelre van szüksége éljen ingyenes, személyre szabott hitel ügyintézési szolgáltatásunkkal is.
Lukács Péter

Lukács Péter

Hívjon bizalommal

+36-30-694-Mutasd!

További hirdetéseim

Ingatlaniroda
GDN Ingatlanhálózat - Belváros
+36 1 783 2515

Küldjön üzenetet

Visszahívást kérek

Hasonló ingatlanok