Eladó Ikerház Vasszécseny - Nyugodt környezetben

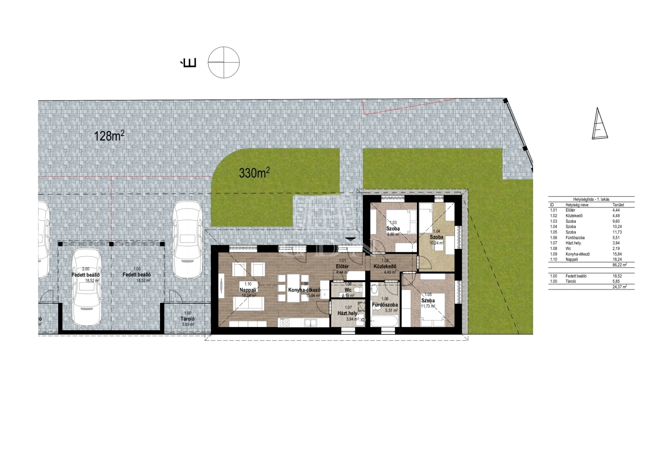
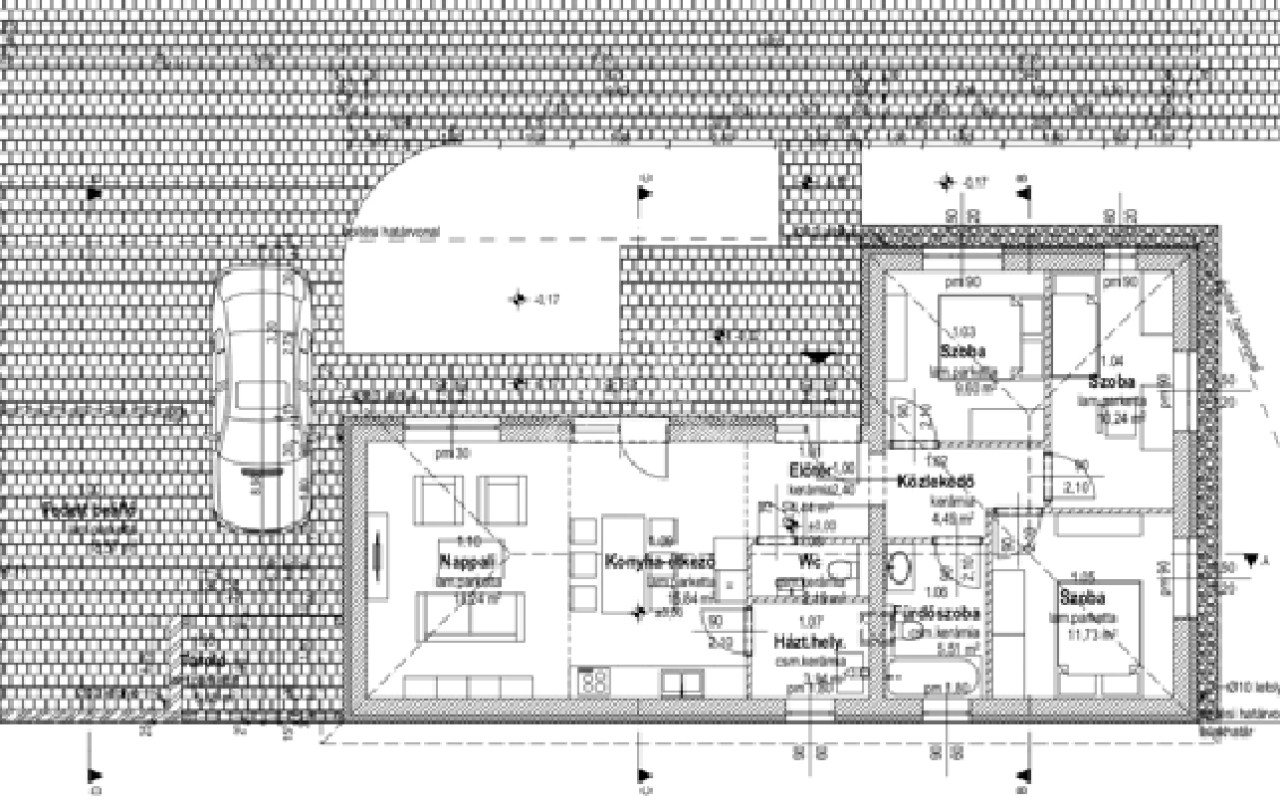
86 m2Alapterület 4 Szoba
79 000 000 Ft Ár
392605Azonosító
További adatok

330 m2 Telek

Kertre néző Kilátás

Új Állapot

Tégla Szerkezet

16 m2 Erkély/terasz

Gáz (cirkó) Fűtés

Összkomfort Komfort

Saját beálló Parkolás

Tömegközlekedés

Amerikai konyhás

Van Kertkapcsolat

2026 Építés éve

Hitelkalkuláció – a részletekért kattintson valamelyik bank logójára!

Dinamikusan fejlődő településen Vasszécsenyben, nyugodt környéken osztott telken családiházak eladók. A jól átgondolt tervezésnek köszönhetően a házak fedett gépkocsibeállókkal érintkeznek. Az ingatlanok magas műszaki tartalommal épülnek. A sávalapra épülő lakóegységek Porotherm téglából készülnek, vakolt felületekkel. A tető héjazata Bramac Római Novo cseréppel történik. Három rétegű nyílászárói fokozottan hang-és hőszigetreltek, motoros aluredőnyökkel felszereltek. Homlokzatára Austrotherm EPS hőszigetelő rendszer kerül, 15 cm vastagsággal. Födémere 30 cm szigetelést terveztek. Fűtéséről, meleg vízellátásáról kondenzációs gázkazán gondoskodik, padlófűtéses hőleadással. Az ingatlan nappaliában hűtő-fűtő klíma gondoskodik a kellemes hőmérsékletről. Elektromos ellátottsága 3x25 Amperrel történik. Az ingatlanokat vízlágyítókkal is felszerelik. A házak 86 m2 nagyságúak, 15 m2 terasszal. Három hálószoba + nappali kialakításúak. Az utcafronti házhoz 330 m2 saját kert tartozik. A hátsó ingatlan 755 m2-es telekkel rendelkezik. Térkövezés bizonyos hányada, tereprendezés a vételár részét képezi. A Beruházó rugalmasságának köszönhetően belső módosításokra van lehetőség.
Lukács Péter

Lukács Péter

Hívjon bizalommal

+36-30-694-Mutasd!

További hirdetéseim

Ingatlaniroda
GDN Ingatlanhálózat - Belváros
+36 1 783 2515

Küldjön üzenetet

Visszahívást kérek

Hasonló ingatlanok