Eladó Családi ház Zalaegerszeg - ! Új építésű tégla családi ház !

130 m2Alapterület 4 Szoba
96 900 000 Ft Ár
394126Azonosító
További adatok

1874 m2 Telek

Udvari Kilátás

Új Állapot

Tégla Szerkezet

15 m2 Erkély/terasz

Hőszivattyú Fűtés

Összkomfort Komfort

Saját beálló Parkolás

Kiváló Tömegközlekedés

Amerikai konyhás

Van Kertkapcsolat

2026 Építés éve

Hitelkalkuláció – a részletekért kattintson valamelyik bank logójára!

PRÉMIUM ÚJ ÉPÍTÉSŰ CSALÁDI HÁZ ZALAEGERSZEG LEGKERESETTEBB RÉSZÉN – VORHOTÁN!

Tágas telek. Modern élet. Saját ízlésre szabható otthon.

Képzelje el, hogy egy csendes, zöldövezeti környezetben, mégis könnyen megközelíthető helyen él a családjával…
Most ez valósággá válhat!

Egy lenyűgöző, 1874 m²-es telken épül meg ez a modern, letisztult stílusú családi ház, ahol minden adott a nyugodt, minőségi élethez.

AMI AZONNAL MEGFOG:
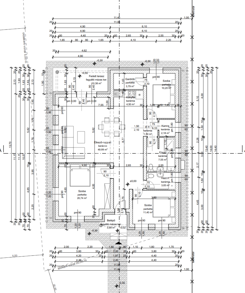
-124 m² tökéletesen átgondolt élettér
-3 külön nyíló, világos hálószoba
-Hatalmas, napfényes nappali–konyha–étkező egy légtérben
-Fedett terasz (10,5 m²) – reggeli kávé, esti borozás, nyugalom
-Energiatakarékos hőszivattyús fűtés
-Óriási telek pázsittal, bokrokkal, fákkal – és akár kert, medence, játszótér is belefér

A LEGJOBB BENNE?

Ez nem egy „kész” ház, amit csak elfogad.
EZ AZ ÖN OTTHONA LESZ.

Most még beleszólhat az elrendezésbe, stílusba, kialakításba – pontosan olyanná formálhatja, amilyet mindig is szeretett volna.

Műszaki felszereltség:

- Az otthon melegéről korszerű hősszivattyús kazán gondoskodik, padlófűtés formájában, H tarifás mérővel ellátva, helyiségenkénti hőfokszabályozással, így garantált az energiatakarékos, környezetbarát fenntartás

- Melegvízellátásáról modern, energiatakarékos villanybojler gondoskodik

- Szobái és helyiségei magas minőségű hideg és meleg burkolattal ellátottak, fürdőszobáinak szaniterei ugyanilyen kvalitással bírnak

- A ház kizárólag téglából, 16 cm hőszigeteléssel épül, cserép héjazattal

- Külső nyílászárói 3 rétegű, műanyag nyílászárók

- Lehetőség van napelemes rendszer felszerelésére, mellyel mindezeket a felsorolt energiaköltségeket tovább lehet minimalizálni

HELY, AHOL JÓ ÉLNI

Vorhota:
✔ nyugodt, rendezett, szomszédmentes környezet
✔ újabb építésű, igényes házak a közelben
✔ természetközeli hangulat
✔ mégis minden elérhető távolságban

⚡ NE MARADJON LE!

Az ilyen adottságú telken épülő, személyre szabható új házak gyorsan gazdára találnak.
Ez nem csak egy ingatlan — ez egy életstílus.

HÍVJON MOST!

Teljes körű, díjmentes ügyintézéssel segítünk:
✔ hitel
✔ jogi háttér
✔ energetika

Irányár: 96 900 000.- Ft

Az ár KULCSRAKÉSZ ÁLLAPOTRA vonatkozik, a képek tájékoztató jellegűek!

Amennyiben a képek és a leírás alapján az ingatlan felkeltette érdeklődését, keressen bizalommal a megadott elérhetőségeken!
Lukács Péter

Lukács Péter

Hívjon bizalommal

+36-30-694-Mutasd!

További hirdetéseim

Ingatlaniroda
GDN Ingatlanhálózat - Belváros
+36 1 783 2515

Küldjön üzenetet

Visszahívást kérek

Hasonló ingatlanok