Eladó Lakás (téglaépítésű) Zalaegerszeg - I. emelet, azonnal költözhető

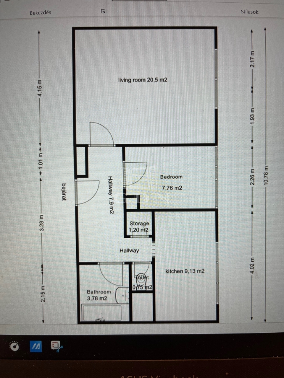
55 m2Alapterület 2 Szoba
38 500 000 Ft Ár
392427Azonosító
További adatok

Utcai Kilátás

Jó állapotú Állapot

Tégla Szerkezet

Gáz (konvektor) Fűtés

Összkomfort Komfort

Utcán, közterületen Parkolás

Emelet 1

Nincs Lift

Kiváló Tömegközlekedés

Nem Amerikai konyhás

Nincs Kertkapcsolat

1978 Építés éve

Közös költség 21 670 Ft

Hitelkalkuláció – a részletekért kattintson valamelyik bank logójára!

Eladó téglalakás Zalaegerszeg Kertvárosában – 2 szoba, 1. emelet !!

Zalaegerszeg közkedvelt, kertvárosi városrészében eladóvá vált egy 55 m²-es, első emeleti, 2 szobás téglalakás, mely azonnal birtokba vehető.

Az ingatlan világos, kelet–nyugati tájolású, elosztása kifejezetten kedvező:
-2 külön nyíló szoba
-kamrával ellátott konyha
-fürdőkádas fürdőszoba
-külön helyiségben található wc

A lakás fűtését gázkonvektorok, a melegvíz-ellátást gázbojler biztosítja.
Az otthon nyílászáróit, bejárati ajtaját modern műanyagra cserélték, redőnnyel látták el.

Az ingatlan egy szigetelt, rendezett, jó állapotú, 4 emeletes társasházban található.
Az ingatlanhoz közös tároló is tartozik.

Parkolás az épület előtt és mögött ingyenesen megoldott, ami igazán ritka és értékes előny.

Lokációja kiváló:
- minden fontos szolgáltatás 5 perc sétával elérhető,
- buszmegálló 1 percre található.

Az ingatlan tehermentes, tulajdoni viszonyai rendezettek.
Ajánlom befektetőknek és saját részre vásárlóknak egyaránt ezt a kiváló elhelyezkedésű, első emeleti lakást!

Irányár: 38.500.000 Ft
Lukács Péter

Lukács Péter

Hívjon bizalommal

+36-30-694-Mutasd!

További hirdetéseim

Ingatlaniroda
GDN Ingatlanhálózat - Belváros
+36 1 783 2515

Küldjön üzenetet

Visszahívást kérek

Hasonló ingatlanok